VENDESI CASA INDIPENDENTE CON GIARDINO PRIVATO
Serralunga di Crea
Sotto Serra 2
€ 148.000,00
REF. 2575
A Serralunga di Crea, nella località Serra, in posizione tranquilla proponiamo…
Vendita
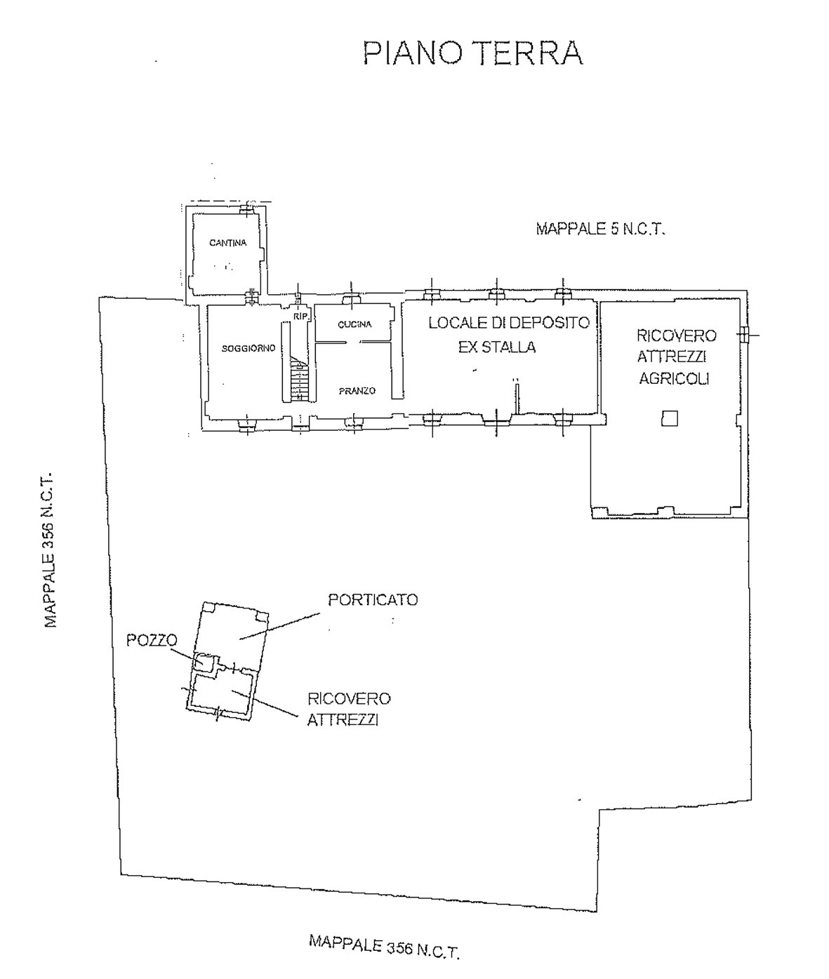
VENDESI CASCINALE DA RISTRUTTURARE A CASALE MONFERRATO
REF. 2466 – SAN GERMANO- STRADA ALESSANDRIA 23, CASALE MONFERRATO
VENDITA - Casa / Villa – Monferrato Casalese
VENDITA - Casa / Villa – Monferrato Casalese
Proponiamo in vendita cascinale indipendente da ristrutturare a San Germano, frazione di Casale Monferrato di circa mq 250 circa e si sviluppa su più livelli: al piano terra troviamo il soggiorno, la cucina con zona pranzo ed un ripostiglio; al primo piano due camere letto, un servizio e un altro ripostiglio; al secondo piano due ampie camere. Inoltre ampia cantina, locali uso deposito e ricovero attrezzi, vano ex fienile, un cortile antistante con magazzino, oltre ad un terreno perimetrale che circonda la proprietà. Per ulteriori informazioni o per fissare una visita contattare l'ufficio.
| Camere: | 4 | Sale: | 1 | Cucine: | 1 |
| Servizi: | 1 | Ripostigli: | 2 | Giardino: | Sì |
| Terreno: | Sì | Cantine: | 1 | Mq: | 250 mq |
| Condominio: | No | Arredato: | No |
Prezzo
€ 125.000,00
Scarica scheda immobile in PDF
Richiedi informazioni
€ 125.000,00